Skip to main content

خريطة المستشفي

موقع مستشفي اسيوط الجديدة الجامعى


تقع مستشفى أسيوط الجديدة الجامعي بحي الزهور بمدينة أسيوط الجديدة على مساحة10500 متر.
تتكون المستشفي من عدد 8 مباني


مبنى المستشفى الرئيسي وسبع غرف ملحقه عبارة عن:

- غرفة الإسعاف
- غرفة الأمن
- غرفة المعاون
- غرفة المحرقة
- غرفة مولد الكهرباء
- غرفة لوحات الكهرباء الرئيسية
- غرفة نظام الإطفاء


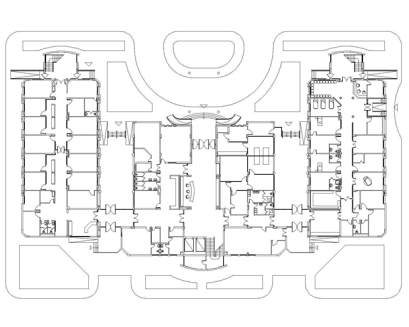
يتكون المبنى الرئيسي للمستشفى من ثلاث طوابق.

الطابق الأرضي

ويتكون من جناحين أيمن وأيسر ومنتصف: 


أولا الجناح الأيمن يحتوى على :

العيادات: 
- غرفة الأشعة التلفزيونية
- غرفة تحصيل التذاكر
- غرفة الغازات
- غرف الإداريين


العيادات تتكون من عدد 8 عيادات :

- عيادة الأمراض ألباطنه وأمراض القلب
- عيادة جراحة العظام
- عيادة الأطفال
- عيادة النساء والتوليد
- عيادة الجراحة العامة
- عيادة الأسنان
- عيادة الأمراض الجلدية والتناسلية
- عيادة جراحة التجميل


ثانياً:الجناح الأيسر يحتوى على:

- الاستقبال
- ثلاجة الموتى
- المطبخ
- المغسلة
- غرفة التحكم
- وحدة الغسيل الكلوي (لم يتم تشغيلها بعد)

الاستقبال يتكون من:

- غرفة كشف وفرز
- غرفة تمريض
- غرفة ملاحظه
-غرفة كشف
- مخزن معدات طبية
- غرفة تجبير
- عمليات صغرى(عمليات ملوثه)
- استراحة أطباء
- استراحة طبيبات
-غرفة سجلات المرضى


ثالثاً المنتصف يحتوى على:

- المعمل
- بنك الدم (لم يتم تشغيله حتى تاريخه)
- غرفة اخذ العينات
- مخزن
- الصيدلية
- غرفة الأشعة
- مكتب طبيب


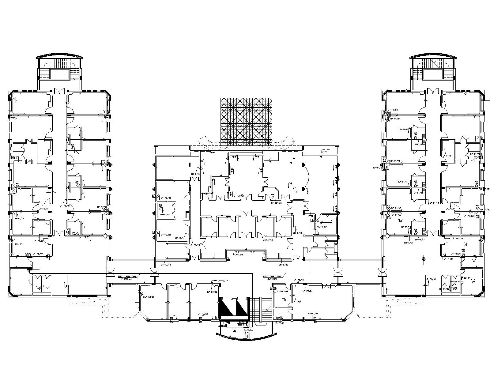
الطابق الأول علوي:

رابعاً:الطابق الأول العلوي يتكون من:

جناحين يحتوون على غرف المرضى بعدد إجمالي 24 غرفة بطاقة 71 سرير إجمالي عدد أسرة المرضى بالمستشفى.
 

خامساً:المنتصف علوي يحتوى على :

 
- مكتب السيد الدكتور/مدير المستشفى
- مكتب السادة أعضاء هيئة التدريس
- مكتب مدير الشئون المالية والإدارية
- جناح العمليات
- حضانات الأطفال
- غرفة التعقيم
 

جناح العمليات يحتوى على:

- غرف العمليات الكبرى
- غرفة العمليات الصغرى
- غرفة عمليات الولادة عدد 2
- العناية المركزة (لم يتم تشغيلها بعد)
- رعاية مبتسرين (لم يتم تشغيلها بعد)